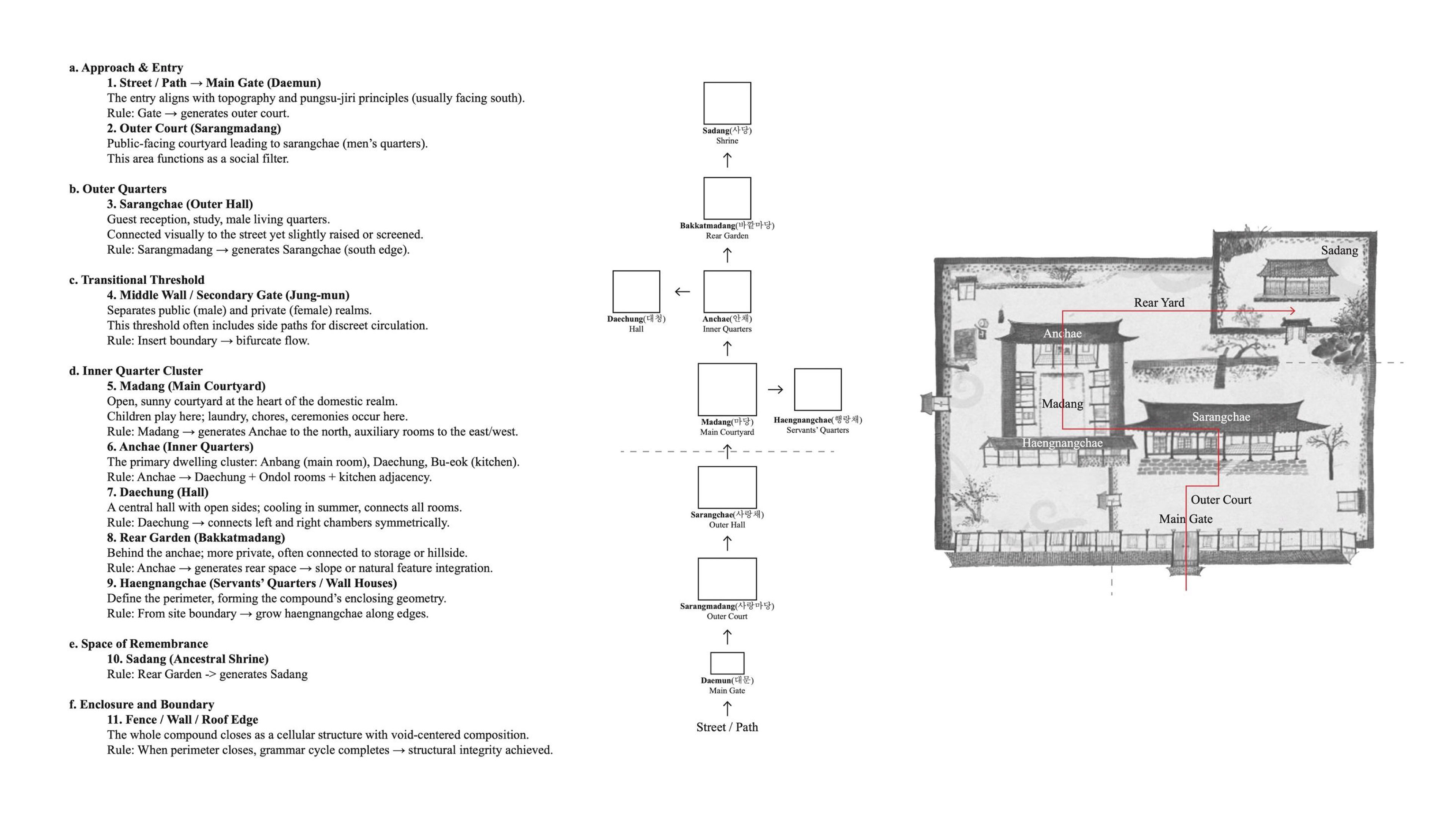
The Hanok (the traditional Korean house) is not a static typology but a living organism of cultural geometry. It encodes climate, ritual, and social structure through proportional order, material logic, and spatial flow.
This project seeks to recompose the Hanok through shape grammars, treating its architectural logic as an algorithmic logic.

You may also like

Back to Top