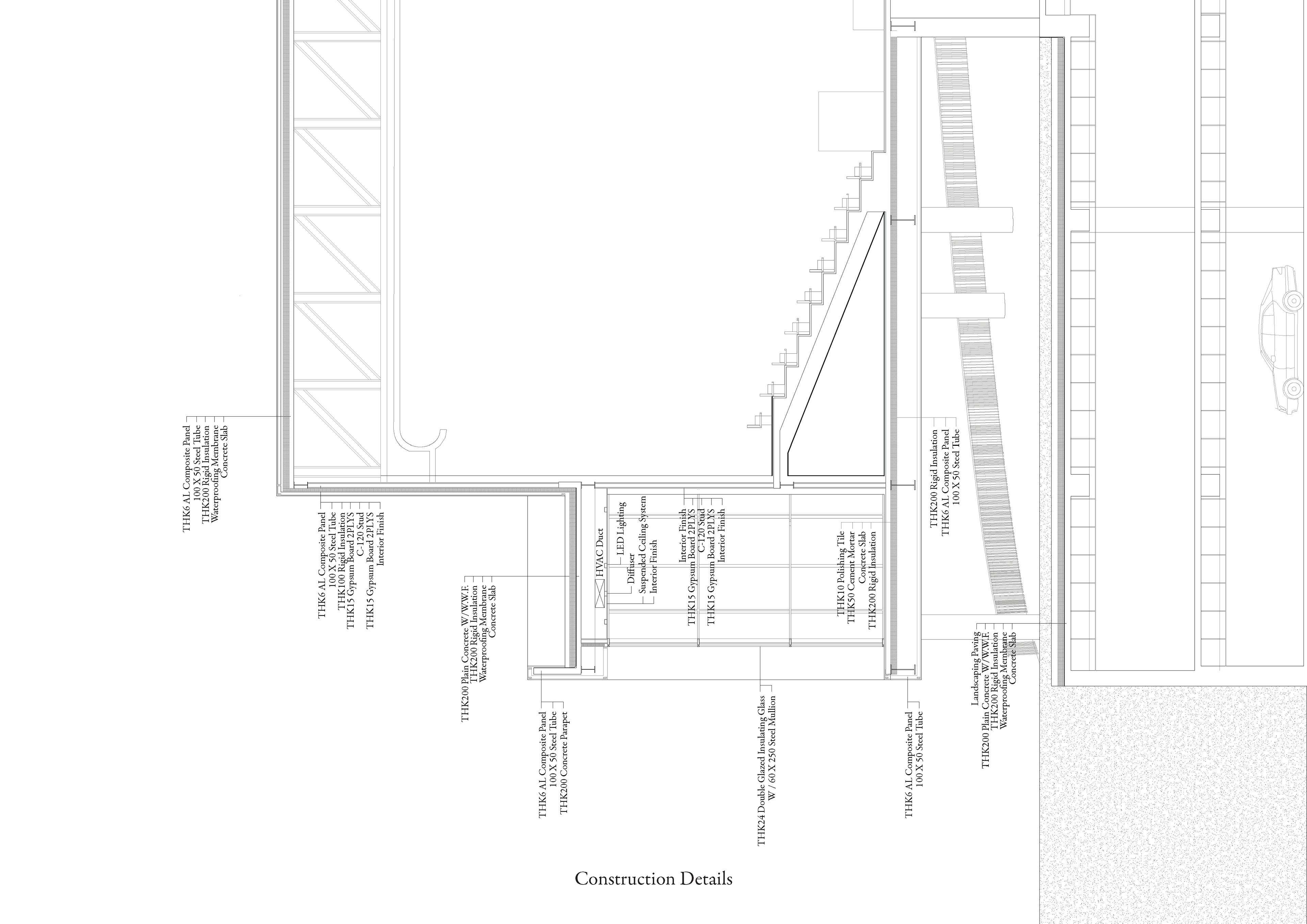
An Interlude - 127°2'38.3", 37°32'32.3"
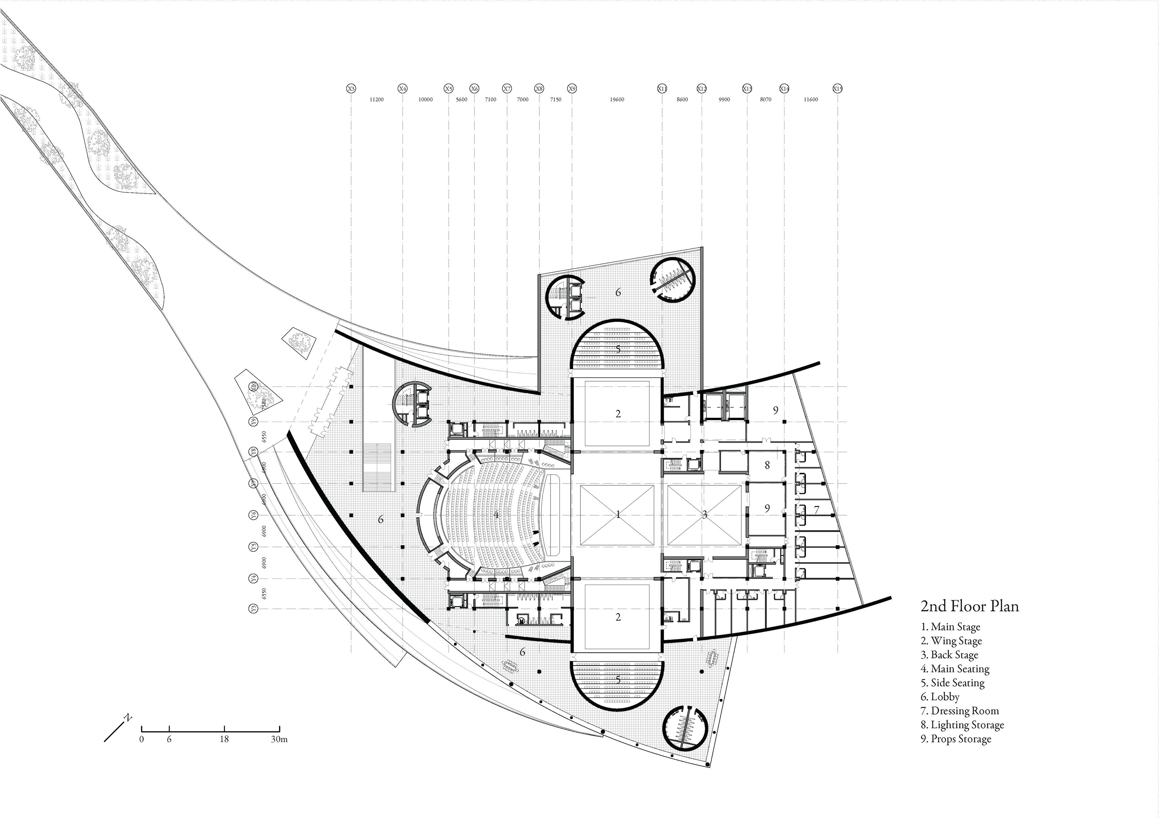
The proposed project is an opera house in the Seoul Forest area in Seongsu-dong, intending to revive the Opera genre, a receding field of music in Korea. Acting as much more than just a professional performance space, the opera house will play an important role in the development of culture and arts, showcasing opera works both Korean and worldwide while also providing audiences with various experiences.
The genre of opera” in Korea is characterized by the alienation of the public and the lack of audience critics, which are two crucial aspects for any genre moving forward. Those genres that lack such elements tend to be complacent with their current status quo and slowly recede, eventually dissolving into nothingness, nothing more than a faint memory. This proposal is to imbue the eminence and importance of the opera genre in the realm of music. This is achieved through softening the boundary between the public and opera (also, related people working in the industry) and creating a venue that provides the audience with various experiences while simultaneously solving the lack of an adequate performance environment for operas.
In terms of urban context, the project aims to resolve the shortage of cultural and artistic facilities in eastern Seoul and revitalize the local economy through interacting with the emerging cultural and artistic industries in Seongsu-dong. In addition, the project presents an architectural solution that links the geographic context of the site, which is located between the Seongsu urban area and the natural green area of Seoul Forest.
Cultural Facility (Concert Hall) per district, Seoul City
Concert Halls spread bias towards specific areas - lack of concert halls in Northeastern Seoul
Concert Halls spread bias towards specific areas - lack of concert halls in Northeastern Seoul
Modern society constantly evolves into something more complex, transforming existing norms and diverging into entirely new branches of previously unknown and unheard-of areas. Facing this perpetual transformation and the social problems that arise, the need to find a resting place to distance yourself from those problems for a short time is more significant than before. We can focus on a healing medium that is highly accessible in everyday life: Music. It creates social cohesion, speaks to all when words can fail, and is a universal language. It is understood wherever you go, and its power to connect people is unquestionable. Also, music stimulates the brain, which in turn helps with pain relief, reducing stress and memory. It can also improve mood and reduce anxiety and, through bringing people together, can be an antidote to loneliness and social isolation.
The Seoul Metropolitan Area is one of the largest urban areas in the world, ranking 9th in population and 4th in economy size. The increase in culture and arts infrastructure corresponds with the large population: Statistics show that concert halls have increased by 400% since 2010. This expansion of cultural facilities revitalizes local culture and increases creativity through improving and equalizing cultural welfare. Arts and culture facilities function as a cultural development hub where performing arts producers and consumers meet, playing a central role in local cultural policy and regional culture and arts development.
This trend, however, does not show a significant discrepancy in the number of arts and culture centers per area. These facilities are concentrated in the center of Seoul, colloquially referred to as the ‘inner area of the four gates, and are severely lacking in other areas. Northeastern Seoul (Dobong, Nowon, Jungnang, Dongdaemun, Gwangjin, Seongdong) is the most noticeable area where we can observe this phenomenon; this is a surprise since those districts make up 22.7% of the entire population of Seoul, and they are notable for being the main residential areas of the city. The fact that this area is gradually connected to the suburban bedroom town cities of Namyangju and Guri supports the construction of an arts and performance hall in Northeastern Seoul.
The site is located in Seongsu-dong, which has various exciting conditions. Road conditions and public transportation make the site accessible from different parts of Seoul, making it an adequate place to host an arts and culture performance hall. The site conditions, given that it is located in an intersection of three areas: the green forest area, the industrial · commercial area, and the urban area, create a challenge to integrate all three conditions.
The site is located in Seongsu-dong, which has various interesting conditions. Road conditions and public transportation make the site accessible from various parts of Seoul, making it an adequate place to host a performance hall. The site conditions, given that it is located in an intersection of three areas: the green forest area, the industrial · commercial area, and the urban area, create a task to integrate all three conditions.
Microscopic Site Analysis
Analysis on Site Code and Regulations
Opera is known for portraying difficult subject matter like suicide, violence, and honor through the transformative power of the acoustic human voice. It has the raw emotional power to expose audiences to serious issues while allowing them to grapple with the issues on their terms. All of these subjects are part of humanity, and despite the worse times and better times for certain things, never have disappeared. They are part of what it means to be human and something we are constantly grappling with and constantly trying to overcome. Opera can bring people together through art to help them gain an understanding of different cultural traditions that might otherwise seem difficult to understand.
Korean opera has a tumultuous history, with brief success. The genre was first introduced when Chosun opened doors to Western society. Original compositions started in the 1930s, but they had their complications; the bulk of the material was created or directly influenced by the reigning Japanese government. Only after independence did the Koreans get to experience operas that they were emotionally connected to. Notable works were those that reinterprated classical Korean music such as ‘Pansori’ with a new, modern taste, such as ‘Chunhyangga’. However, this success was short-lived, as the Korean War brought a halt to further cultural activities, creating a shadow on Korean opera that still exists today.
Although it is still in the development phases compared to the entirety of the 450-year history of opera, Korean opera has grown to the point where the sheer quality is on par with its European counterpart. This is shown in the increased number of private opera companies operating across the country and Korean singers performing in European opera houses. Despite this progress, to the general public, opera still feels distant compared to other stage arts such as plays and musicals. This is largely due to the entrenchment of the perception that opera is ‘high culture’. Unlike widely popular genres such as musicals or plays, the process of producing an opera and putting it on stage is expensive and time-consuming.
Urban Connection -”Interlude”
The site is located in an intersection between Seoul Forest: an urban green area, and Seongsu: the up-and-coming urban hive of young adults. The aim is to gradually connect these two areas with a ramp outside the opera main space.
The boundary of green and gray is blurred, allowing much easier access to both areas. This also applies to the Opera itself, as users of both green and gray are both gradually introduced to the middle, the “Interlude”.
The site is located in an intersection between Seoul Forest: an urban green area, and Seongsu: the up-and-coming urban hive of young adults. The aim is to gradually connect these two areas with a ramp outside the opera main space.
The boundary of green and gray is blurred, allowing much easier access to both areas. This also applies to the Opera itself, as users of both green and gray are both gradually introduced to the middle, the “Interlude”.
Seongsu Urban Redevelopment Plan, part 1
Yet another clause of the urban redevelopment plan urges to connect Seoul Forest Station with the forest by introducing a sunken area, which gradually achieves this effect. Commercial programs are placed in this area to facilitate the urban circulation that connects the two key areas.
Yet another clause of the urban redevelopment plan urges to connect Seoul Forest Station with the forest by introducing a sunken area, which gradually achieves this effect. Commercial programs are placed in this area to facilitate the urban circulation that connects the two key areas.
Seongsu Urban Redevelopment Plan, part 2
The Seongsu Urban Redevelopment Plan requires to preserve the pedestrian walkway that connects Seoul Forest and the area around, which includes Under Stand Avenue, a hub for startups and up-and-coming artists, and Acro Seoul Forest. Preserving the flow of this circulation is crucial in introducing new audiences to a domestically burgeoning, yet unstable genre.
The Seongsu Urban Redevelopment Plan requires to preserve the pedestrian walkway that connects Seoul Forest and the area around, which includes Under Stand Avenue, a hub for startups and up-and-coming artists, and Acro Seoul Forest. Preserving the flow of this circulation is crucial in introducing new audiences to a domestically burgeoning, yet unstable genre.
Northwestern Ramp, facing B1 Floor Entrance and Seoul Forest