DDM Biophilic 127°1'27.9", 37°34'24.3"
The 20’s age group has the highest rating in terms of the awareness and experience of visiting a library, while the 60’s to 70’s age group has the most people visiting a library. There are also documents related to what the users are looking for when visiting a public library. We divided the user’s intent into three goals based on data: finding information(53%), borrowing books(28%), and application of space(16%). There was beneficial information on how libraries can change to fit the needs of the public. The priority of the needs is as follows: comfortability, professionality, and pleasantry. The project aims to provide these aspects by integrating new programs, such as the exhibition, education centers, and maker space, with the previously existing library program.
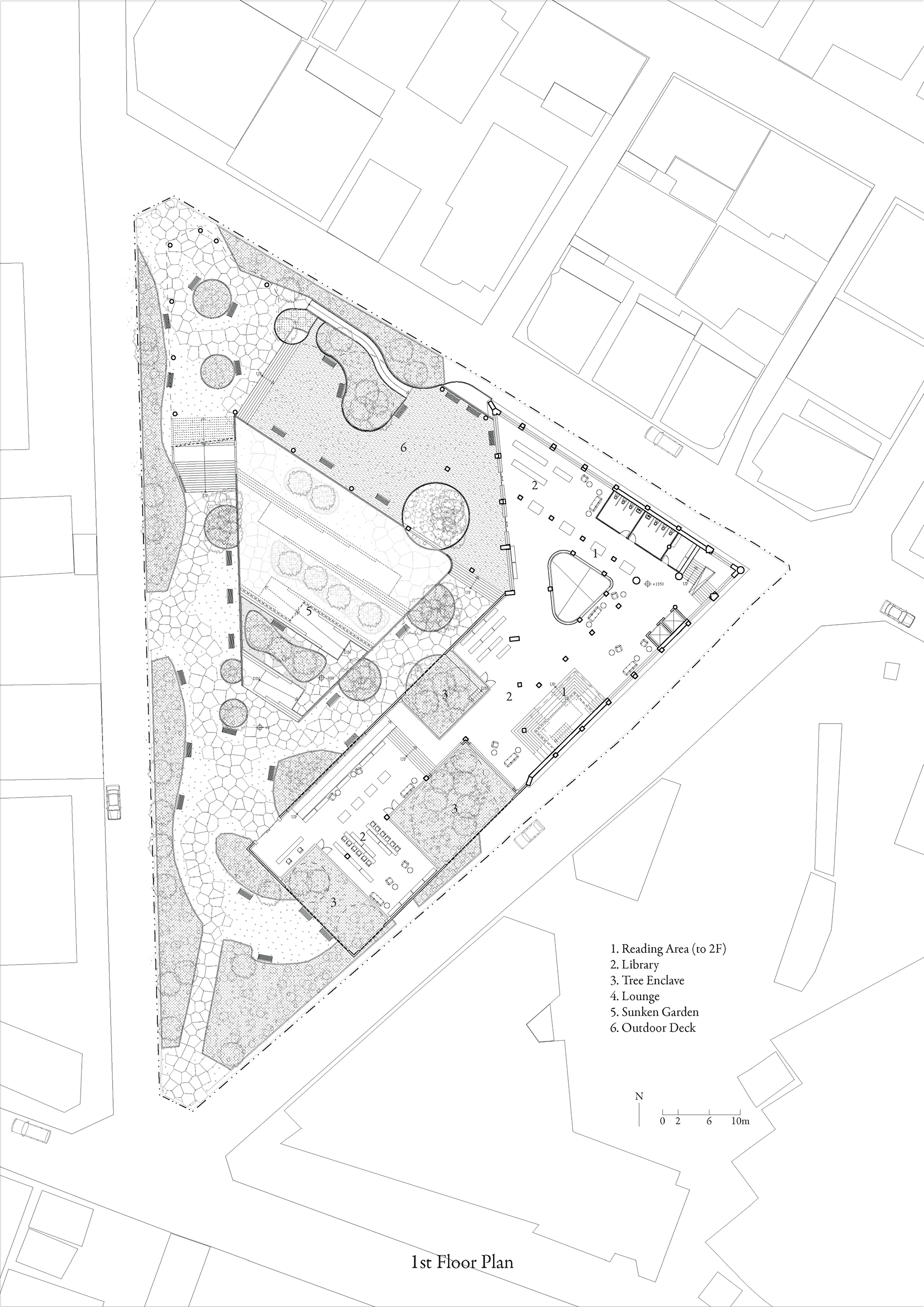
The site is located in Dongdaemun-Gu. This place is characterized by the lack of vegetation, the least out of all the districts in Seoul. In contrast, the existing Usangak Children’s Park is defined by the rich vegetation, highlighted by the tall trees that enclose the building. The project aims to seamlessly integrate the new programs with the existing library while considering the plan so the green and gray gradually circulate within the site.
Lack of Vegetation in Dongdaemun-gu, compared to other districts
Design Development
Nature Library: Trees and Hills creating Forest-like space